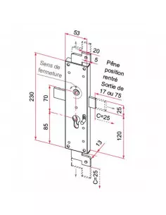
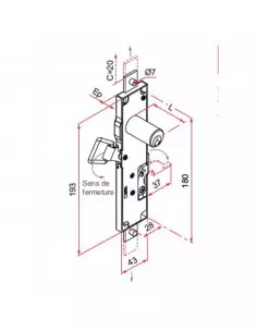
Liste des produits de la marque TIRARD